Принимаем кухню после ремонта: инструкция по применению

Как гарантированно получить хороший ремонт за свои деньги?
Если заказчик обратился в строительную компанию и заключил договор, все косяки, которые будут обнаружены в уже готовом отремонтированном помещении, фирма должна переделывать за свой счет. Иногда переделкой занимается другая бригада. В этом случае стоимость ее работы должна вычитаться из оплаты предыдущей.
Но что делать, если ремонтом занималась не строительная компания, а «шабашники», и все договоренности были устными, договоров и актов приемки никто не подписывает, а деньги выплачиваются наличными?
Совет первый: во время ремонта кухни принимайте работы поэтапно. Об этапах ремонта мы писали в этой статье. На первом этапе проверяется качество черновых работ, правильность подведения и установки всех коммуникаций. Затем следует этап чистовой отделки, ее принимают отдельно. Отделочные работы — последний этап, позволяющий оценить не только качество, но и эстетику готового проекта: отсутствие пузырей на обоях, неровностей на потолке и целостность плитки.
Заказчик не обязан разбираться в нюансах строительства и ремонта. Каждый должен заниматься своим делом, невозможно быть специалистом во всех областях сразу. Наша задача как компании-производителя мебели — предостеречь, что не все недочеты ремонта можно прикрыть красивой мебелью. Монтажные бригады компании «Стильные Кухни и Интерьеры» иногда оказываются крайними в ситуации, когда кривые стены, неровные углы в 88 градусов вместо 90, забытые розетки мешают поставить заказанную кухню идеально.
Обратившись к нам за проектированием кухни на этапе, когда сделан черновой ремонт, но еще не начата чистовая отделка, можно сэкономить немало денег и времени. Обратитесь в салон «Стильные Кухни и Интерьеры», вызовите замерщика, это бесплатно. Замеры покажут, где нужно выровнять и зашпаклевать стены, где — укрепить их для навешивания шкафов, а где — сделать дополнительный вывод электричества для измельчителя пищевых отходов.
Идеальная ситуация — когда ремонтом занимается не сам клиент, а нанятый им профессиональный прораб. Толковый бригадир сможет проконтролировать работу на каждом этапе. Ему проще объяснить, куда нужно перенести розетку, куда вывести слив воды и в каком месте поставить редуктор давления воды. С ним можно общаться на одном языке.
Совет второй: даже если вы частным порядком договариваетесь с бригадой, поставьте над ними одного главного и ответственного, который бы вел коммуникацию с остальными участниками процесса. В частности, с теми монтажниками, которые привезут клиенту мебель.
Каждый ремонт — индивидуальный проект и индивидуальное решение. Довольно часто клиент вообще никак не участвует в процессе и только на финальном этапе принимает готовую работу — отремонтированную квартиру с мебелью. В этом случае прораб — заинтересованное лицо, он понимает, что клиент не примет у него работу, пока не будет идеально, и стремится исправить все допущенные ошибки.
Совет третий: не рассчитывайтесь с бригадой ремонтников до момента установки мебели. Монтажники должны принять помещение, в котором предстоит устанавливать кухню, и указать на ошибки, которые надо исправить. И тем более не платите строителям вперед. Пока в ремонте не будет поставлена точка и не будет сделан полный расчет, ремонтники будут вынуждены доделывать до конца все, чтобы довести помещение до приемки.
Иногда в ремонте участвует сразу несколько бригад: на черновых работах — одна, потом приходит бригада «отделочников», отдельно работают сантехники, электрики. Если все эти работы организует строительная фирма, клиенту это спокойнее, но и дороже. Поэтому некоторые заказчики пытаются сэкономить и делают ремонт сами. Например, позвал электрика. чтобы проштробил стены и провел электрику, позвал сантехника, чтобы установил унитаз, но при этом сам хозяин шпаклюет, красит или клеит обои. Наши рекомендации при таком подходе — узнать предварительно технические требования перед установкой кухни, оценить, насколько их возможно выполнить самостоятельно без специальных знаний. И если нет, то позвать профессионалов для того, чтобы хотя бы кухню подготовили к установке встроенной мебели идеально.
Алгоритм приемки помещения кухни
Проверка на законность
Без согласования по Жилищному Кодексу можно делать косметический ремонт: штукатурить стены, клеить обои, красить, укладывать новое напольное покрытие взамен старого. А вот любые работы, результат которых меняет технический план помещения, нужно предварительно согласовывать. На кухне особенно пристального внимания заслуживают перенос стен, отсутствие двери в случае, если в доме есть газ, закрытые шкафами или трубами вентиляционные отверстия, изменения в водопроводной системе и канализации. Принимая эти работы у бригады, вы несете ответственность за них как владелец помещения.
Проверка стен
Проверка на ровную поверхность и четкие прямые углы
Самая большая проблема при установке мебели на кухне — не вертикальные стены, непрямые углы, отсутствие розеток, отсутствие выводов воды и канализации там, где они были спроектированы.
Вертикальность стен очень важна. Это значит, что между стеной, соседней стеной, полом и потолком углы должны быть строго 90 градусов. Казалось бы, пара градусов туда-сюда — непринципиально? Но 1 градус отклонения на 600 мм дает зазор в 10,5 мм, который придется чем-то прикрывать. Угол между двумя соседними стенами, отличающийся от прямого, может стать критичным при установке столешницы из керамики или агломерата, которую нельзя «подрезать» на месте.

Часто бывает, что стены завалены равномерно. Расстояния между стен на всем их протяжении равные, а вот углы — непрямые, помещение на плане не квадратное, а в форме ромба. Мебель с точными прямыми углами в такое помещение не влезает, потому что сделать кривые шкафчики мы не можем. Вот и приходится устанавливать фальшпанели, наличники, которые не добавляют кухне красоты. Особенно часто к таким уловкам приходится прибегать во время установки встраиваемых в нишу шкафов или гарнитура, который располагается на кухне от стены до стены.
Проверять все эти параметры нужно после окончания чистовой отделки, с уровнем и угломером.
Проверка на прочность
Представьте себе: при навеске шкафов мастер сверлит отверстие — и пробивает стену насквозь, кроша плитку в соседней ванной. Все потому, что стена между кухней и санузлом оказалась не 10 см толщиной, как прописано в нормативах, а всего 3-4 см. Почему так случилось? Хозяин просто не знал этот параметр, не сказал о нем ни дизайнеру, проектировавшему кухню, ни бригаде установщиков мебели.
В случае, если вы планируете менять кухонную мебель после ремонта, обязательно выясняйте толщину стен, вдоль которых устанавливают гарнитур. Стена, на которую навешивают шкафы, может не быть несущей, но при этом должна быть толщиной не менее 10 см. Если это перегородка из гипсокартона между кухней и ванной, его нужно дополнительно усилить, либо вовсе отказаться от верхнего яруса шкафов.
Проверка на эстетичность
На этом этапе оценивается качество отделки. Совпадают ли наклеенные обои по рисунку? Есть ли под ними пузыри воздуха? Плитка положена ровно, не имеет трещин и сколов, стыки аккуратные?
Проверка пола
Ровный пол — еще один параметр, который поможет установить мебель на кухню идеально. Пол проверяют уровнем. Также важно, чтобы внутри плиточного пола не было пустот, о них скажет глухой звук при простукивании.
На ламинате проверяют качество стыков, они должны быть плотно пригнаны и заделаны. Под линолеумом не должно быть пузырей. И конечно, когда вы ходите по такому полу, он не должен скрипеть и проседать.
Проверка электрики
Случай из практики: клиент принял ремонт на кухне и заказал у нас кухню. Доставили, установили — и в момент подключения подсветки выяснилось, что к имеющимся розеткам не подведено электричество. Ошибка не наша, но чтобы выяснить причину и устранить недочет, нужно демонтировать полкухни. Ведь клиент хочет видеть полностью работающую кухню.

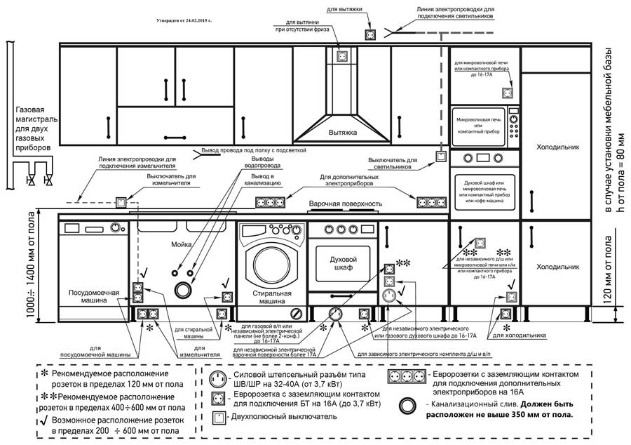
Поэтому при приемке кухни обязательно проверяйте электропроводку. Если планируете делать это самостоятельно, вооружитесь потенциометром — прибором для измерения напряжения в розетках. Проверьте все розетки, все выключатели.
Розетки — «слабое место» почти любой кухни. Кроме описанного случая, одна из частых проблем на установке кухни — необходимость переноса розеток. Потому что к тем, которые есть сейчас, невозможно подключить все заказанные бытовые приборы, освещение и т.п.

Проверка вентиляции
Вентиляцию очень важно проверить на кухне, в туалете и ванной. Проще всего сделать это с помощью зажигалки: зажгите и поднесите к вентиляционной решетке. Пламя должно колебаться и тянуться к вентиляции.
Если есть лист бумаги, его можно прислонить к вытяжному отверстию — листок должен держаться без помощи извне. Это значит, что вентиляция работает.
Идеальная ситуация на кухне — когда для кухонной вытяжки есть отдельная вентиляционная труба или дополнительный короб. К сожалению, большинство квартир не рассчитано на подключение вытяжки к общей системе вентиляции дома. Если встроить дополнительный двигатель (вытяжку) в единую вытяжную систему, он создаст дополнительное давление, на которое система, особенно в старых домах, не рассчитана. А значит, все запахи с вашей кухни будут идти к соседям, и наоборот.
В дальнейшем при установке кухни придется учитывать и требования к вентиляции от производителей техники. Для многих приборов нужно особое движение воздуха и, следовательно, требования к техническим зазорам, которые не мешают естественной вентиляции. Мы предупреждаем клиентов, что не можем нарушать правила завода-производителя, закрывать эти зазоры глухими фальшпанелями, хотя с точки зрения дизайна это может быть не очень красиво. Если же клиент настаивает, ситуация может закончиться перегревом техники и ее поломкой.
К вентиляции в кухне с газовой плитой еще более жесткие требования. Сейчас у нас менее 15% заказов кухни под газовую варочную панель, но они есть, и приходится переубеждать клиентов, что нельзя тянуть короб или гофру от вытяжки к вентиляционному отверстию, что вытяжка должна работать в режиме рециркуляции и не перекрывать воздуховод.
Проверка водопровода и канализации
При приемке помещения кухни проследите, чтобы все коммуникации имели правильный вывод, а трубы — правильный уклон. Все разводки, разветвители, счетчики должны иметь технический доступ для их правильного обслуживания.
Перед установкой кухни мы выдаем правила подготовки коммуникаций в помещении под монтаж кухни. На этой схеме фигурируют все выводы подачи воды и ее слива.

Сейчас наша компания планирует начать контактировать с заказчиками как можно раньше, еще на этапе ремонта, предшествующего косметическому. Ведь если помещение под мебель будет подготовлено правильно, то и нашим установщикам будет гораздо легче работать, и результат порадует клиента.
Проверка потолка
Проверяя качество потолка, смотрите на высоту и ровность. Высота должна соответствовать тому, чтобы было оговорено в проекте изначально. Ровность предполагает отсутствие трещин, пузырей, «волн» и других огрехов. Это правило работает для любых потолков, включая натяжные.
Если потолки на кухне натяжные, то во время создания дизайн-проекта кухонной мебели стоит предусмотреть зазор между верхом антресольных шкафов и потолком, а также направление открывания фасадов. Установленные вплотную к потолку антресоли красивы. Но если фасад откидывается вверх, при отсутствии зазора он может повредить потолок.
Мы понимаем, что готовая кухня — это не только стильная мебель, но и ровные стены, хорошие коммуникации, продуманная электрика, отделочные материалы высокого качества. Но раз мы на кухне — последние, в глазах клиента мы — крайние. Именно по нашей работе клиент выносит вердикт: да, все нравится или нет, надо все переделать.
Ответственность за конечный результат сделал нашу компанию максимально клиентоориентированной. Раз мы специалисты, значит, должны предусмотреть все сложности, с которыми наш заказчик может столкнуться еще на этапе ремонта кухни. По этой причине мы помогаем клиентам сориентироваться: у нас есть технические рекомендации, есть есть бесплатный выезд замерщика и есть сервисная служба, которая всегда готова прийти на помощь. Потому что мы всегда на стороне наших клиентов и хотим, чтобы они оставались с нами.
Сделать онлайн-расчёт вашей будущей кухни
Сделать онлайн-расчёт вашей будущей кухни

Сделать онлайн-расчёт вашей будущей кухни
-
27 лет на рынке
Изготовили > 630 000 кухонных гарнитуров
-
Бесплатные услуги
Замер, доставка, подъём, сборка и установка
Работаем по Москве и МО и по СПб и ЛО